Tüm talep ve istekleriniz için satış ofislerimizden, çağrı merkezimizden bize ulaşabilirsiniz.

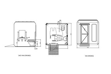
Engelli Wc Kabini 215x215

  • Genişlik 215 cm
  • Derinlik 215 cm
  • Ağırlık 540 kg
Şu anda 12 misafir bu ürünü inceliyor
Bizi Arayın

Engelli WC Kabini 215x215: Erişilebilirlik İçin Doğru Adım

Engelli bireylerin günlük yaşamda karşılaştığı en temel ihtiyaçlardan biri, tuvalet alanlarının erişilebilir ve konforlu olmasıdır. Bu ihtiyaca doğrudan cevap veren Engelli WC Kabini 215x215, hem kamu hem de özel kullanım alanlarında erişilebilirliği destekleyen ideal bir çözüm sunar.

Engelli Wc Kabininde Geniş ve Rahat İç Alan

215x215 cm ölçüleri sayesinde içeride tekerlekli sandalye ile rahat hareket edilebilecek bir alan sunar. Engelli bireylerin kendi başına veya yardımcı eşliğinde tuvaleti güvenle kullanabilmesi için gerekli tüm iç düzenleme bu modele entegre edilmiştir.

İç mekânda, duvar destek barları, kaymaz zemin kaplaması, alçak lavabo ve yüksek oturumlu klozet gibi detaylar, kullanım güvenliğini artıran unsurlar olarak öne çıkar.

Nerelerde Kullanılır?

Bu ürün özellikle belediyeler, hastaneler, kamu binaları, alışveriş merkezleri, etkinlik alanları, park ve mesire yerleri, okul ve üniversite kampüsleri gibi herkesin erişebileceği alanlarda kullanılmak üzere tercih edilmektedir. Aynı zamanda büyük açık hava organizasyonları, spor karşılaşmaları, konserler gibi etkinliklerde geçici kurulumla hizmet sunmak için de idealdir.

Taşınabilir ve Kolay Kurulumlu Engelli WC Kabini 

Engelli WC Kabini taşınabilir yapısıyla ihtiyaç duyulan her alana kolaylıkla götürülebilir. Hazır tesisat altyapısı ile geldiği için kurulum süresi kısadır. Elektrik ve su bağlantısı yapıldığında hemen kullanıma hazır hale gelir.

İhtiyaç sona erdiğinde başka bir lokasyona taşınarak yeniden kullanılabilir, bu da ürünü uzun vadede ekonomik kılar.

Dayanıklı Yapı, Uzun Süreli Kullanım

Polyester malzemeden üretilmiş Engelli WC Kabini dış yüzey, hem hava koşullarına karşı dayanıklıdır hem de uzun süreli kullanımda deformasyon göstermez. Güneş altında solmaz, yağmurda su geçirmez. İç mekânın kolay temizlenebilir yüzeyi hijyenin her zaman üst düzeyde tutulmasını sağlar.

Engelli WC Kabini İle Toplumsal Erişimde Küçük Ama Anlamlı Bir Adım 

Kamuya açık alanlarda engelli bireylerin ihtiyaçlarını gözeten yapılar inşa etmek, yalnızca yasal bir zorunluluk değil, aynı zamanda sosyal bir sorumluluktur. Bu kabin modeliyle hem bu sorumluluğu yerine getirmek hem de kullanıcı memnuniyetini sağlamak mümkün olur.

En Çok İncelenenler